Рады, что вам понравилась статья 😊
В данной статье рассмотрим, что такое штампы по ГОСТу и какие есть особенности оформления их на чертежах, исходя из различных форматов листов.
Штампы на чертеже являются важной частью технической документации и играют ключевую роль в стандартизации информации, представленной на чертежах. Они помогают обеспечить быстроту и точность восприятия информации, а также способствуют соблюдению единого формата документации. В данной статье мы рассмотрим основные требования к штампам на чертеже в соответствии с действующими нормами ГОСТа.
🤔 ОпределениеШтамп — это законченный графический элемент, который содержит информацию о чертеже. Он не только фиксирует основные данные о документе, но и упрощает процесс работы с ним.
В частности, штамп может включать информацию о:
В России существует ряд стандартов, касающихся оформления штампов:
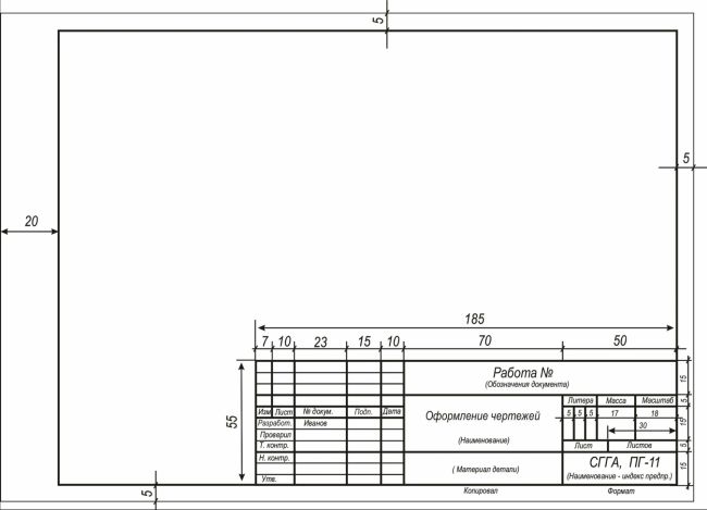
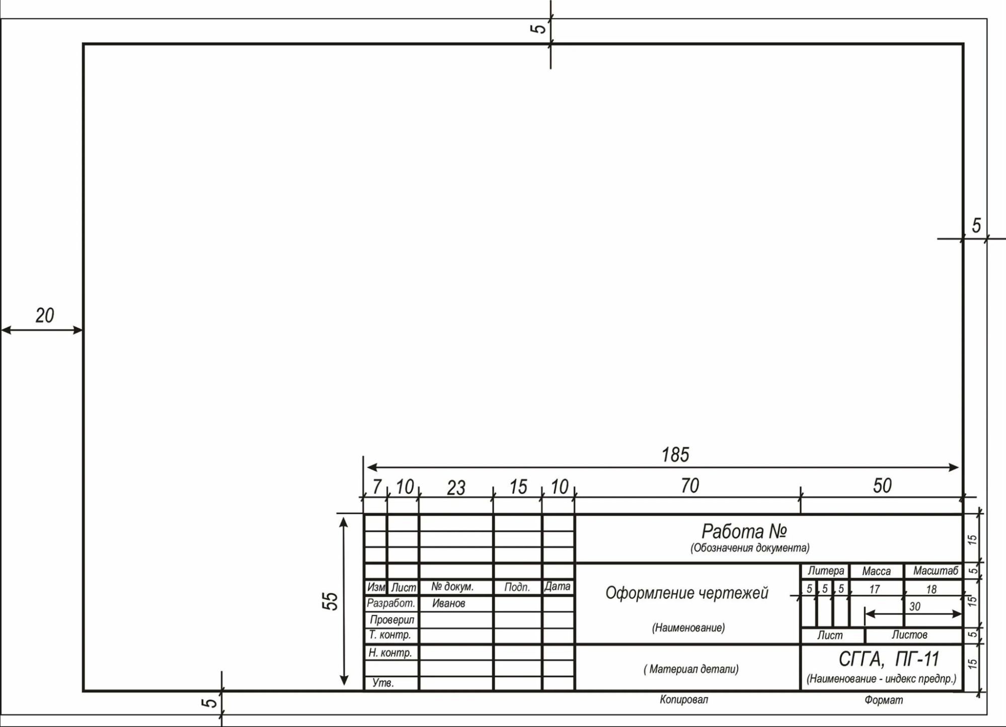
Согласно ГОСТ 2.102-2013, штампы должны быть оформлены в прямоугольной рамке и помещены в нижний правый угол чертежа в таком формате:
Штамп может включать различные графические элементы, такие как логотип предприятия, символику и т. д. Однако важно удерживать баланс между дизайном и информативностью, чтобы не перегружать штамп излишними деталями.
Кроме того, рекомендуется использовать черный цвет для текстовой информации, а для логотипа — соответствующие корпоративные цвета.
Штамп может включать следующие элементы:
В некоторых ситуациях внесение изменений в лист может оказаться нецелесообразным из-за значительного объема необходимых правок. В таких случаях лист подлежит аннулированию. Правила аннулирования подробно изложены в ГОСТ Р 21.1003.
Согласно данному стандарту, на всех оригинальных листах, а также на копиях, необходимо поставить штамп «Аннулировано» размером 80 на 28 мм. Внутри штампа указываются номер, дата регистрации разрешения на внесение изменений, а также подписи ответственных лиц.
Если новый лист не создается, вместо этого номера ставится прочерк. В противном случае указывается новый номер аннулируемого листа. Высота шрифта внутри штампа должна составлять 3 мм, а высота надписи «АННУЛИРОВАН» – 5 мм.В ГОСТ Р 21.1003-2009 указано, что при аннулировании листа слово «Заменен» в штампе следует зачеркивать.
Важно не путать термины «аннулирован» и «заменен» — это разные понятия.
«Аннулирован» означает, что данный документ (или лист основного комплекта с указанным номером) больше не будет существовать.
Карточка учета изменений является важным инструментом в системе управления документацией, особенно в контексте проектирования и конструкторской деятельности. Она предназначена для ведения записи о внесенных изменениях в документацию и позволяет обеспечить контроль за актуальностью информации.
Карточка учета изменений служит для:
Согласно требованиям ГОСТа, основными стандартами, касающимися оформления карточки учета изменений, является ГОСТ 2.102-2013. «Единая система конструкторской документации. Листы и регистрационные формы».
В соответствии с данным стандартом, карточка учета изменений должна содержать следующую информацию:
При оформлении карточки учета изменений следует придерживаться определенных рекомендаций:
Карточка учета изменений может использоваться в следующих случаях:
Фото: https://sskural.ru/k_std/articles/r7_GOST_R_21.1101-2013.pdf
Штампы на чертежах играют ключевую роль в стандартизации и упорядочении технической документации. Они предоставляют важную информацию о документе и упрощают его идентификацию. Однако формат листа, на котором размещен штамп, может варьироваться, и это требует различных подходов к его оформлению.
Размеры штампа и его расположение могут меняться в зависимости от формата листа.
Для формата A4 размеры штампа обычно составляют 100 x 70 мм. Он располагается в нижнем правом углу чертежа. При этом важно оставить достаточно места между штампом и краями листа, чтобы обеспечить хорошую читабельность.
Пример размещения:
Фото: https://www.google.com/url?sa=i&url=https%3A%2F%2Fwww.ptamka.ru%2Flibrary%2F290-drawing-gost-doc.html&psig=AOvVaw0sIJKwnjuwzbhmQFJNhjFi&ust=1726299606170000&source=images&cd=vfe&opi=89978449&ved=0CBcQjhxqFwoTCJjv-cO1v4gDFQAAAAAdAAAAABAE
Для формата A3 рекомендуется использовать штамп размером 120 x 80 мм. Расположение должно соответствовать логике расположения информации на листе при масштабировании. Это позволит сохранить читабельность и структуру документа.
Пример размещения:
Фото: https://heatprof.ru/photo/a3-ramka-razmery
Формат A2 требует более крупного штампа, поэтому рекомендуется размер 150 x 100 мм. Это обеспечит четкость и читабельность данных, учитывая увеличение общего размера листа.
Пример размещения:
Фото: https://dokipedia.ru/sites/default/files/doc_files/534/832/2/files/image26.png
Для формата A1 стоит использовать штамп размером 200 x 120 мм. Учитывая размер листа, это поможет обеспечить визуальную балансировку, а также облегчить восприятие информации.
Пример размещения:
.png)
Фото: https://www.google.com/url?sa=i&url=https%3A%2F%2Fchertezh.by%2Fskachat-ramku-a1-autocad%2F&psig=AOvVaw0KLUW30dNgTTXzPVrobLHN&ust=1726299504755000&source=images&cd=vfe&opi=89978449&ved=0CBcQjhxqFwoTCNCOhfq0v4gDFQAAAAAdAAAAABAE
Правила ГОСТа определяют требования к правильному выполнению и заполнению штампов в исполнительной, проектной, конструкторской и сборочной документации. Однако в стандарте не указано, какими инструментами должны осуществляться эти процессы.
Для школьных или студенческих проектов штампы часто оформляются вручную. В то время как для профессиональной работы используют специализированные программы, такие как Компас, Ревит или Автокад. Эти приложения позволяют создавать необходимые рамки в соответствии с выбранным форматом листа. Обычно применяется готовый шаблон, который загружается в проект. Текстовые документы, в свою очередь, оформляются в Microsoft Word, где также используются готовые шаблоны для штампов.
На чертежах также размещаются штампы, которые подтверждают, что проект или отдельный лист прошел проверку в соответствующих инстанциях. Например, на эскизном варианте фасада ставится штамп «Согласовано» и подпись главного архитектора.
Кроме того, на инженерных сетях в генеральном плане земельного участка (втором листе графической части) должны быть размещены штампы «Согласовано». Смежные специалисты также оформляют свои подтверждения, подтверждая, что сети обозначены правильно и к ним можно подключиться в соответствии с выданными техническими условиями. Экспертиза проверяет наличие этих отметок на плане и фасаде.
В данной статье мы рассмотрим, можно ли скачивать чертежи в интернете и что делать, если это не получилось.
Скачивание готовых чертежей с интернета имеет несколько плюсов:
Экономия времени. Готовые чертежи позволяют быстро получить необходимые материалы, избегая длительного процесса разработки с нуля.
Удобство. Легкий доступ к разнообразным проектам и дизайнам, которые могут быть использованы в различных сферах, таких как архитектура, строительство, машиностроение и т. д.
Уроки и идеи. Готовые чертежи могут служить источником вдохновения и помочь новичкам понять, как правильно составлять свои проекты.
Качество и разнообразие. На специализированных платформах можно найти профессионально выполненные чертежи, которые могут соответствовать высоким стандартам.
Экономия ресурсов. Скачивание чертежей может сократить затраты на проектирование, особенно для небольших компаний или индивидуальных разработчиков.
Возможность адаптации. Готовые чертежи можно модифицировать под свои нужды, что позволяет использовать их как базу для дальнейшего развития проекта.
Обучение. Анализ готовых чертежей может углубить понимание различных технических аспектов, таких как масштабирование, пропорции и использование материалов.
Доступ для всех. Бесплатные и платные ресурсы позволяют людям с разными уровнями мастерства и финансовыми возможностями находить нужные им чертежи.
Устранение ошибок. Использование проверенных чертежей может помочь избежать распространенных ошибок, которые могут возникнуть при самостоятельном проектировании.
Тем не менее, важно помнить о соблюдении авторских прав и проверке качества скачиваемых материалов.
Скачивание готовых чертежей с интернета также имеет свои недостатки: Качество материалов. Не все чертежи, доступные в интернете, выполнены на высоком уровне. Возможны ошибки или недостатки, которые могут привести к проблемам в реализации проекта. Отсутствие индивидуальности. Использование готовых чертежей может привести к тому, что проект будет выглядеть стандартно и у него будет низкий процент оригинальности Проблемы с авторскими правами. Многие готовые чертежи защищены авторскими правами. Неправомерное использование таких материалов может привести к юридическим последствиям. Необходимость адаптации. Готовые чертежи могут потребовать значительной доработки или адаптации под конкретный проект, что может свести на нет выгоду от их использования. Несоответствие стандартам. Чертежи могут не соответствовать местным строительным или инженерным стандартам и нормам, что может вызвать проблемы при проверке или разрешении на строительство. Ограниченность информации. В готовых чертежах может отсутствовать нужная информация о применяемых материалах или технологиях, что затрудняет их реализацию. Потеря навыков. Зависимость от готовых чертежей может замедлить развитие собственных навыков проектирования и понимания технических процессов. Устаревшие данные. Некоторые чертежи могут быть устаревшими или не соответствовать современным требованиям и изменениям в технологиях. Сложность поиска. При поиске чертежей можно столкнуться с проблемой качества информации и трудностями в фильтрации полезных материалов от менее актуальных. С учетом этих аспектов, важно тщательно оценивать готовые чертежи, прежде чем использовать их в своих проектах. В процессе проектирования и создания чертежей многие сталкиваются с ситуацией, когда самостоятельно разработать нужный проект становится сложно. При этом не всегда есть возможность скачать готовые работы из интернета по различным причинам — от нарушения авторских прав до недостатка качественных ресурсов. Давайте рассмотрим стратегии и подходы, которые помогут справиться с этой проблемой. Обратитесь к обучающим материалам. Если у вас возникают затруднения, обратитесь к учебникам, онлайн-курсам или видео урокам, посвященным проектированию. Такие материалы помогут вам углубить знания, понять основные принципы и познакомиться с новыми техниками создания чертежей. Часто изучение конкретных примеров и методик может вдохновить вас на создание собственного проекта. Используйте программы и инструменты для проектирования. Современные программы для проектирования, такие как AutoCAD, SketchUp или Revit, предлагают разнообразные инструменты и шаблоны. Даже если вы не можете скачать готовые чертежи, вы можете использовать встроенные функции для создания объектов, поиска стандартных элементов и автозаполнения. Попробуйте поэкспериментировать с различными инструментами, чтобы упростить процесс. Запросите помощь у одногрупников или сообществ. Не бойтесь обратиться за помощью к более опытным студентам или профессионалам в вашей области. Обсуждение проблем с проектированием может привести к конструктивным решениям. Также можно задать вопросы на специализированных форумах и в группах (например, в социальных сетях), где пользователи делятся опытом и советами по проектированию. Начните с простого. Если вас пугает сложность проекта, попробуйте разбить его на более простые части. Сначала сосредоточьтесь на создании отдельных элементов, а затем соедините их в итоговый чертеж. Постепенное наращивание сложности поможет вам избежать серьезных затруднений и позволит лучше понять процесс проектирования. Рисуйте от руки. Ручное рисование — это прекрасный способ развить навыки проектирования и визуализации. Сделайте предварительные наброски на бумаге, используя карандаши и линейки. Этот метод позволит вам освободить творческий поток и осознать основные проблемы, которые могут возникнуть в процессе разработки. Изучите ту область, в которой вы проектируете. Понять специфику и требования к проектируемому объекту может значительно упростить процесс. Изучите нормы и правила, относящиеся к вашему проекту. Ознакомьтесь с примерами успешных работ, которые были разработаны в этой области. Знание специфических деталей поможет вам создать более качественный и соответствующий проект. Протестируйте и получите обратную связь. Не бойтесь показать свои чертежи другим. Получение обратной связи от коллег или профессионалов может быть очень полезным. Они смогут указать на возможные недочеты и дать советы по исправлению. Кроме того, процесс обсуждения ваших идей может помочь вам увидеть проект с другой стороны и найти новые решения. Создание чертежа может быть сложным и порой запутанным процессом, особенно когда самостоятельная разработка вызывает затруднения, а готовые решения недоступны. Однако с помощью команды Ворк5 ваши чертежи будут созданы в срок и без недочетов.
Что делать, когда нельзя скачать готовые работы
В этой статье мы расскажем, о том как правильно оформить основную надпись на чертеже по ГОСТу.
Основная надпись является обязательным элементом оформления чертежей и других конструкторских документов в соответствии с требованиями ГОСТа. Она служит для внесения различной технической информации, необходимой для идентификации, учета и управления документацией.
Требования к оформлению основной надписи регламентируются следующими стандартами:
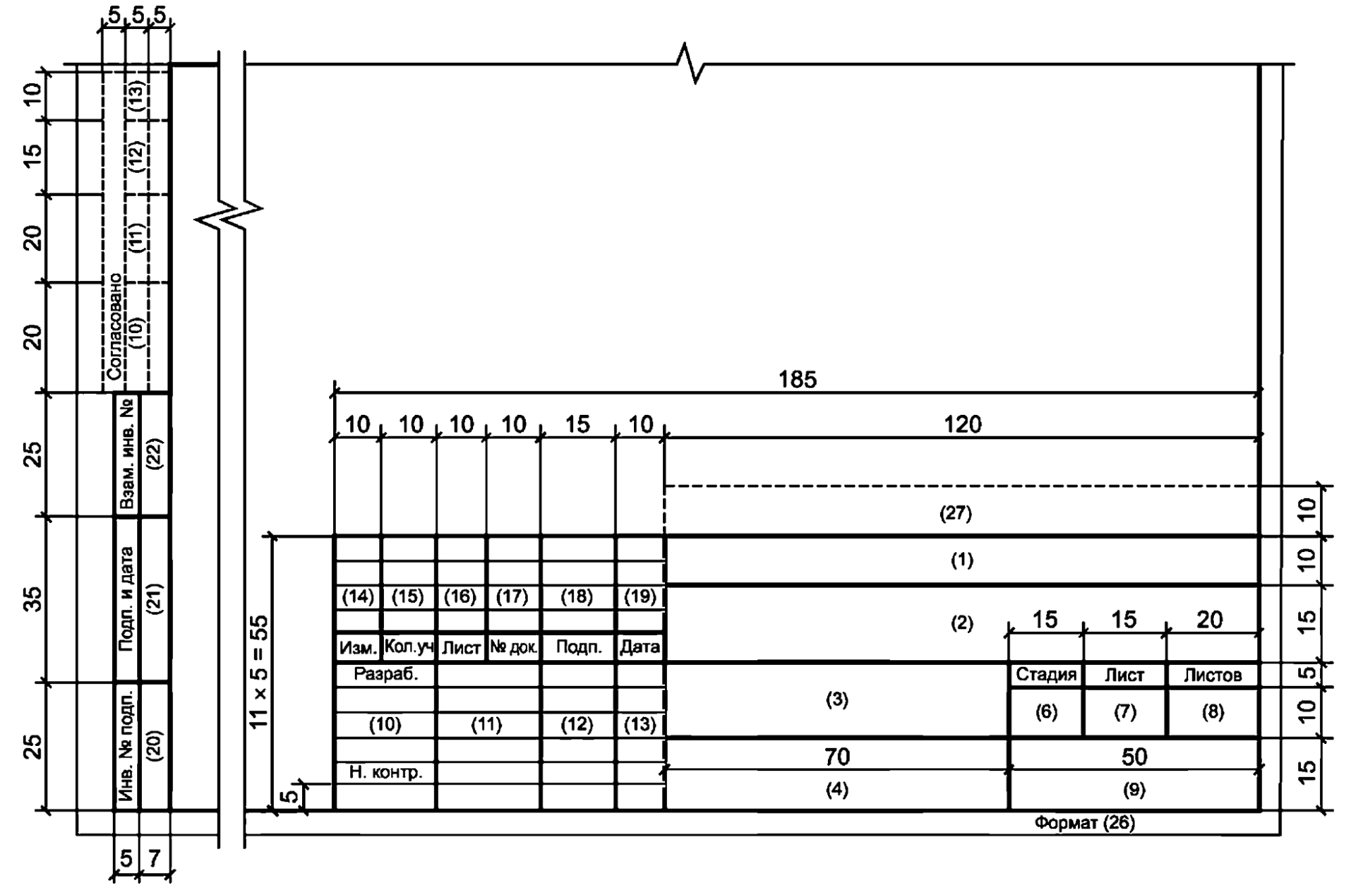
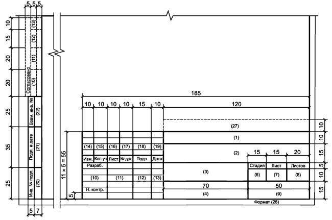
Согласно ГОСТ 2.104–2006, основная надпись располагается в правом нижнем углу формата чертежа или документа. Она состоит из 18 граф, в которые вносятся соответствующие данные в определенной последовательности.
Основные графы основной надписи:
Размеры основной надписи на чертежах и других конструкторских документах регламентируются стандартом ГОСТ 2.104–2006 «Основные надписи».
Согласно данному ГОСТу, основная надпись может иметь следующие варианты исполнения:
1. Основная надпись формата А4 (210 х 297 мм):
2. Основная надпись формата A3 (297 x 420 мм):
3. Основная надпись для форматов A2, A1, A0:
Размеры граф в основной надписи также строго регламентированы:
Размеры граф могут быть уменьшены, но не более чем на 5 мм. Также допускается увеличение ширины граф 1–5 на 5–10 мм при необходимости.
Соблюдение стандартизованных размеров основной надписи является важным требованием при оформлении конструкторской документации. Правильные размеры обеспечивают четкость, удобство чтения и эстетичный внешний вид чертежей.
Фото: http://profil.adu.by/mod/book/view.php?id=3472&chapterid=10207
Основная надпись на чертеже является одним из основных реквизитов конструкторской документации и содержит ключевую информацию об изделии и самом чертеже. Согласно ГОСТу 2.104–2006 «Основные надписи», в основной надписи должны быть заполнены следующие обязательные реквизиты:
6–10. Сведения об исполнителях — фамилии работников, выполнивших документ (разработчик, проверивший, нормоконтролер и т.д.).
11. Изменения — порядковый номер изменений, вносимых в документ.
12–13. Номер листа и количество листов — указываются номер текущего листа и общее количество листов документа.
14. Стадия — обозначение стадии разработки документа (Р, П, О, Т и др.).
15–18. Подписи исполнителей — личные подписи работников, выполнивших документ.
20. Дата приемки подлинника.
21. Инвентарный номер подлинника.
23–25. Сведения о приеме дубликата.
Помимо этих обязательных реквизитов, в основной надписи могут содержаться и другие атрибуты, например:
Правильное и аккуратное заполнение всех реквизитов основной надписи является важным требованием при оформлении конструкторской документации, так как эта информация используется для идентификации, учета и управления чертежами и другими документами.

Фото: https://dgng.pstu.ru/sprav/1.2.2.htm
Современное проектирование и выпуск конструкторской документации немыслимы без использования специализированных САПР (системы автоматизированного проектирования). В таких программах оформление основной надписи на чертежах происходит в автоматическом режиме в соответствии с требованиями ГОСТ.
Основные особенности оформления основной надписи в САПР:
Использование специализированных САПР значительно упрощает и ускоряет процесс оформления основной надписи на чертежах, обеспечивая при этом соблюдение всех требований стандартов. Это повышает качество и унификацию конструкторской документации.
Одним из наиболее распространенных форматов чертежей является формат А3 (297 x 420 мм). Для данного формата ГОСТ 2.104–2006 «Основные надписи» устанавливает определенные требования к оформлению основной надписи.
Размеры основной надписи формата А3:
Графы в основной надписи формата А3:
6–10. Сведения об исполнителях — по 15 мм.
11. Изменения — 20 мм.
12–13. Лист, Листов — по 15 мм.
14. Стадия — 15 мм.
15–18. Подписи исполнителей — по 10 мм.
Фото: https://dgng.pstu.ru/sprav/1.2.2.htm
Основная надпись располагается в правом нижнем углу формата А3, на расстоянии 20 мм от нижней и правой рамок.
Как и для других форматов, основная надпись на чертежах А3 должна содержать обязательные реквизиты.
Требования к складыванию чертежей регламентируются ГОСТ 2.501–2013 «Правила учета и хранения». Способ складывания зависит от расположения основной надписи на чертеже.
Независимо от расположения основной надписи, сложенный чертеж должен иметь размер, соответствующий формату. При этом основная надпись должна находиться на внешней стороне сложенного чертежа.
Фото: https://www.jetcom.ru/production/es-te/application/gost-folding/#:~:text=1.,%D0%BD%D0%B0%20%D0%BB%D0%B8%D1%86%D0%B5%D0%B2%D0%BE%D0%B9%20%D1%81%D1%82%D0%BE%D1%80%D0%BE%D0%BD%D0%B5%20%D1%81%D0%BB%D0%BE%D0%B6%D0%B5%D0%BD%D0%BD%D0%BE%D0%B3%D0%BE%20%D0%BB%D0%B8%D1%81%D1%82%D0%B0.