Рады, что вам понравилась статья 😊
В этой статье мы последовательно разберем, как выполнить чертеж и какие правила необходимо соблюдать, чтобы его принял преподаватель.
Создание чертежа требует внимательности, точности и понимания стандартов.
Обратите внимание на внешний вид чертежа. Он должен быть аккуратным, четким и профессиональным.
В учебных чертежах часто используются стандартные форматы листов, чтобы обеспечить единообразие и удобство работы.
ГОСТ 21.301-81. Этот стандарт использовался в СССР и продолжает использоваться сейчас. Он включает в себя форматы от А0 до А4. причем A0 – самый большой, а A4 – самый маленький лист.
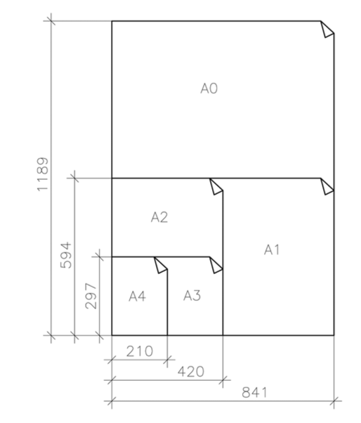
Размер формата А4 (210 х 297) принят за единицу измерения остальных форматов. Формат А0 (841 х 1189), площадь которого 1 м2, позволяет получить другие форматы последовательным делением его на две равные части линией, проводимой параллельно меньшей стороне каждого последующего формата.

Фото: Work5
Обычно для учебных чертежей выбираются форматы, которые наиболее удобны для работы и позволяют учащимся легко читать и работать с материалами. Например, для небольших деталей или схем используется формат A4, в то время как для более крупных чертежей и планов предпочтительнее формат A3.
В учебных чертежах применяются определенные правила оформления рамки.
Фото: nauchniestati.ru
✏ ЗаметкаНельзя выполнять надписи за пределами рамки. Кроме специальных надписей и инвентарных номеров в точно оговоренных местах.
Нельзя «сажать» надпись на рамку. Буквы не должны касаться рамки ни в коем случае, никогда. Прежде всего, потому, что это затрудняет прочтение надписи.Нельзя проводить никаких линий и пробовать чертежный инструмент за границами рамки. Весь чертёж должен быть чистым.
Масштаб на чертежах определяет соотношение между размерами объекта на чертеже и его реальными размерами. Это позволяет представить большие объекты на относительно маленьких листах бумаги или в компьютерной графике. Масштаб обычно выражается в виде отношения между длиной на чертеже и длиной в реальном мире.
Например, если масштаб чертежа указан как 1:100, это означает, что каждый сантиметр на чертеже представляет собой 100 сантиметров (или 1 метр) в реальном мире. Таким образом, объекты на чертеже будут уменьшены в 100 раз по сравнению с их реальными размерами.
Масштаб может быть выражен в виде дроби (например, 1:50, 1:100, 1:200 и т.д.) или в виде процентного соотношения (например, 1%, 2%, 5% и т.д.).
Выбор масштаба зависит от размеров объекта, размеров листа бумаги, требований к точности и читаемости чертежа. Обычно масштаб выбирается таким образом, чтобы весь объект уместился на листе бумаги, при этом сохраняя достаточную детализацию.
Чтобы определить масштаб изображения объекта на чертеже, необходимо взять какой-либо размер в натуре и разделить его на длину этого размера на чертеже. Величина полученной дроби покажет числовой масштаб, который не всегда будет соответствовать стандартной линейке масштабов. Если необходимо вычерчивать изображение на чертеже в стандартном масштабе, то подбирают ближайшее по величине его значение.
Чертежи на подготовительных курсах и вступительном экзамене по черчению выполняются в масштабе 1:1 (один к одному), то есть в натуральную величину. Снабжаются надписью «М 1:1».
Согласно ГОСТ 2.301-68 «ЕСКД. Линии», в чертежах применяются различные виды линий для обозначения различных элементов и конструкций.
Вот шесть основных видов линий, которые используются на чертежах:
Фото: Work5
Стандарты ГОСТа также определяют правила использования шрифтов на чертежах для обеспечения единообразия и удобства чтения.
Фото: Work5
В этой статье мы дадим определение термина графическое изображение, рассмотрим разновидности и сферы применения графики, виды графических изображений и задачи их использования.
🤔 ОпределениеПод графическим изображением принято понимать любого вида изображения, выполненных посредством графических инструментов: ручного использования или с применением оборудования.
В черчении функция графического изображения заключается в передаче геометрических и технических характеристик какого-либо объекта. Это метод визуализации предмета или явления в виде чертежа, графика, схемы и т.д. Применяется в различных сферах жизни. В изобразительном искусстве таким изображением называется стилистика выполнения рисунка. Технику выполнения рисунка с помощью линий, штрихов, точек и теневых пятен в черчении называют графикой. Рисунок, выполненный данным способом — графикой. В зависимости от техники исполнения различают:Основные виды графических изображений в черчении
Первая выполняется вручную в единственном экземпляре. Во втором случае один образец может быть неоднократно скопирован. Компьютерные рисунки хранятся в виде программных файлов без бумажных носителей.
Создание иллюстраций путем графики применяется для:
Информация в виде графического изображения часто легче воспринимается и усваивается аудиторией.
Использование графических изображений в различных сферах имеет множество преимуществ, которые помогают улучшить восприятие информации, повысить эффективность коммуникации и упростить понимание сложных данных. Вот основные преимущества использования графических изображений:
Графические изображения помогают лучше воспринимать информацию, так как они визуализируют данные и делают их более наглядными. Это особенно важно при работе с большими объемами информации или сложными концепциями.
Визуальные элементы, такие как диаграммы, графики и инфографики, упрощают понимание сложных идей и данных. Они позволяют быстро увидеть ключевые тенденции, соотношения и выводы, что облегчает анализ и принятие решений.
Графические изображения привлекают внимание и делают материалы более интересными и запоминающимися. Это особенно полезно в маркетинге, рекламе и образовательных материалах, где важно удержать внимание аудитории.
Использование визуальных элементов в образовательных материалах способствует более эффективному обучению. Графические изображения помогают студентам лучше запоминать информацию и легче усваивать сложные темы.
Визуализация данных позволяет быстро понять суть представленной информации, что экономит время на ее анализ. Это особенно важно в условиях быстрого принятия решений и анализа больших объемов данных.
Графические изображения универсальны и понятны для людей с различными культурными и языковыми особенностями. Они могут использоваться для коммуникации в международных проектах и многонациональных командах.
Графические изображения помогают более эффективно передавать информацию и идеи в командной работе и при взаимодействии с клиентами. Визуальные элементы способствуют лучшему пониманию и снижению вероятности недоразумений.
Использование графических изображений стимулирует креативное мышление и помогает находить нестандартные решения задач. Визуальные элементы могут вдохновлять на новые идеи и подходы.
Графики, диаграммы и карты позволяют визуализировать большие объемы данных и делать их более доступными для анализа. Это особенно важно в научных исследованиях, бизнес-аналитике и управлении проектами.
Графические изображения играют важную роль в улучшении восприятия и понимания информации, повышении эффективности обучения и коммуникации, а также в визуализации данных и стимулировании креативности. Использование визуальных элементов позволяет сделать материалы более привлекательными, понятными и запоминающимися, что способствует достижению поставленных целей и успешной реализации проектов.
В черчении графика применяется для следующих целей:
Чертеж представляет собой основной конструкторский документ, с помощью которого передается образ предмета, графические схемы и связи.
Дизайнерская визуализация позволяет создать и представить публике, запоминающийся образ объекта, который будет нести в себе полную информацию и формирует требуемый эмоциональный отклик.
Графика в современном дизайне призвана:
Графический дизайн помогает объединить воедино маркетинговую информацию и наглядно донести ее до потребителя.
Для наглядной демонстрации данных в графическом дизайне используют подробные рисунки и иллюстрации, а также упрощенные изображения. Создаются они художником вручную или же с помощью компьютерных программ.
Архитектурная графика — вид изобразительного искусства, предназначенный для наглядного представления объектов строительства и проектирования. Для более подробного описания архитектурных объектов художники используют планы, схемы, диаграммы и иллюстрации.
Целью применения графики в архитектуре является:
Графическое изображение объекта архитектуры позволяет наглядно передать подробную информацию о нем, помочь представлению визуального образа и восприятию цельной проектной концепции.
В архитектуре для полноты передачи информации используют несколько видов иллюстрирования объектов — план, фасад, разрез и перспектива. Их совокупность позволяет определить место расположения объекта на участке, представить внешний вид будущего здания, понять объемно-пространственные связи.
Способ создания графических образов посредством программного обеспечения.
Вся программная графика представлена тремя основными видами:
В зависимости от числа измерений различают также 2D и 3D рисунки, применение каждого из них варьируется от целей и задач.
В современных условиях программные графические рисунки нашли широкое применение в различных сферах жизни и отраслях:
Программная графика применяется также в науке и технике, компьютерной анимации, для создания полиграфической продукции и анимации.
В этой статье мы рассмотрим актуальные на 2024 год требования ГОСТ к оформлению чертежей, поделимся примерами и рассмотрим несколько программ, которые упростят работу с чертежами.
✏ ЗаметкаВажно правильно составить чертеж, потому что они сообщают информацию об объекте или конструкции, а также обеспечивают точность, масштабирование и соблюдение стандартов. Правильные чертежи помогают снизить риск ошибок на этапе проектирования, обеспечивают эффективную коммуникацию между специалистами и способствуют совместной работе. Все это — ключевые навыки успешного проектирования и строительства.
Студенты часто путают понятия ЕСКД (Единая система конструкторской документации) и ГОСТ (Государственный общесоюзный стандарт). Важно понимать их взаимосвязь и различия.
🤔 ОпределениеЕСКД — это комплекс нормативных документов для всех этапов проектирования, производства и эксплуатации продукции. Он регламентирует весь жизненный цикл изделия от составления чертежа до сдачи заказчику.
ГОСТ описывает конкретные правила оформления конструкторской документации, чертежей и схем.
То есть ГОСТ — это один из документов в рамках целостной системы ЕСКД.
Главное при оформлении чертежей — соблюдать стандарты. Даже идеально выполненный чертеж может быть не засчитан из-за нарушения требований к оформлению.
Преподаватели первым делом смотрят на:
форматы;
рамку чертежа по ГОСТ;
основную надпись;
шрифты;
типы линий;
нанесение размеров;
масштабы.
Рассмотрим каждый из этих элементов подробнее.
Форматы листов для чертежей регламентирует ГОСТ 2.301-68. Распространены А4, А3, А1, также используются А0, А2, А5. Размеры пишутся в миллиметрах. Каждый следующий формат образуется удвоением меньшей стороны предыдущего.
Студент выбирает формат самостоятельно. В вузах чаще всего используется А3 и А4.
Чертежи выполняют на плотной бумаге или ватмане. При этом надо отметить, что А4 используется только вертикально. Остальные форматы можно располагать любым образом.
При оценке чертежа сначала проверяют соблюдение общих требований к оформлению, а не саму конструкцию изделия. Ключевой элемент — рамка, выполненная строго по ГОСТу.
🤔 ОпределениеРамка — это сплошная толстая линия, ограничивающая поле для схемы или конструкции. Она четко обозначает границы рабочей области листа.
Сейчас студенты обычно используют готовые шаблоны листов с нанесенными рамками. Но нужно знать точные параметры рамки, чтобы уметь выполнять ее самостоятельно.
Размеры и расположение рамки зависят от ориентации листа.
При горизонтальной ориентации отступ 5 мм сверху, снизу, справа. Слева 20 мм для возможности подшивки.
При вертикальной ориентации сверху 20 мм, с остальных сторон 5 мм.
💡 СоветДля упрощения работы рекомендуется использовать готовые листы с рамками по ГОСТу. Это позволит сосредоточиться на содержательной части чертежа.
Оформление чертежей по ГОСТ требует заполнения основной надписи согласно ГОСТ 2.104-2006. Основная надпись располагается внизу листа. Графы отделяются жирными линиями, строки — тонкими.
В готовых шаблонах основной надписи уже указаны следующие графы:
Изм. — номер изменения
Лист — номер листа
Разраб. — разработчик (фамилия и инициалы студента)
Пров. — проверил (преподаватель или научный руководитель)
Т.контр. — технический контроль (заполняет преподаватель)
Н.контр. — нормоконтроль (заполняет преподаватель)
Утв. — утвердил (научный руководитель или зав.кафедрой)
Фото: Work5
Справа указывают место создания и проверки чертежа, а также код направления. Формируется уникальная запись из группы, номера варианта и порядкового номера чертежа.
В нижнем блоке располагается наименование листа в именительном падеже единственного числа, например, «Деталь». Под ним указывают материал детали и номер соответствующего ГОСТ.
В крайнем правом блоке заполняют:
литеру чертежа;
массу в кг;
масштаб (обычно 1:1 или 1:2).
ГОСТ предусматривает несколько видов основной надписи. Их выбор зависит от порядкового номера листа в подшивке чертежей. Для первого листа используется рамка формы 1 (см. выше), для последующих — форма 2 и 2а (уменьшенная высота).
Фото: Work5
При оформлении все слова и цифры должны быть написаны чертежным шрифтом с наклоном согласно ГОСТ.
При создании чертежей немаловажную роль играет выбор шрифта. Государственные стандарты допускают использование двух видов чертежных шрифтов: прямого и наклонного. Для начинающих рекомендуется применять исключительно прямой шрифт, в то время как наклонный вариант предполагает строгий угол наклона 75 градусов.
Фото: Work5
Фото: Work5
Независимо от выбранного шрифта, крайне важно соблюдать одинаковое расстояние между буквами и цифрами. ГОСТ содержит четкие указания относительно высоты и ширины символов. Как правило, применяются средние нормативы, определяемые форматом листа. При этом абсолютно все элементы должны иметь идентичные параметры, проверяемые при помощи линейки. По мере приобретения опыта у студентов вырабатывается навык равномерного письма без использования дополнительных измерительных инструментов.
Следует помнить, что неровный, небрежный шрифт или загрязнения на листе могут стать причиной снижения оценки при проверке работы преподавателем. Поэтому крайне важно выполнять все надписи максимально аккуратно и разборчиво, обращая внимание на чистоту и опрятность оформления чертежа.
Одним из ключевых элементов правильного оформления чертежей по ГОСТ являются типы линий. Различные виды линий выполняют разные функции и помогают отобразить детали изделия, в том числе скрытые элементы. ГОСТ регламентирует начертание, толщину и применение каждого типа линий:
Сплошная толстая линия от 0,4 до 1,4 мм используется для изображения видимых контуров детали.
Сплошная тонкая линия применяется для выносных и размерных линий, штриховки, выносок, их полок и подчеркивания надписей.
Штрихпунктирная линия с чередующимися штрихами 5-30 мм и промежутками 2-3 мм обозначает осевые линии и линии центров окружностей.
Разомкнутая штрихпунктирная линия со штрихами 8-20 мм используется для обозначения линий сечения.
Сплошная волнистая линия обычно изображает линии обрыва или разреза.
Штрихпунктирная тонкая линия с небольшими штрихами 2-8 мм и промежутками 1-2 мм показывает невидимые контуры деталей.
💡 СоветСмотрите полный гайд по составлению чертежных линий в другом нашем материале!
Правильное начертание линий разных типов является критически важным для корректного оформления чертежей и максимально точной передачи информации о деталях. Соблюдение стандартов в части линий — одна из ключевых задач при обучении студентов основам черчения. Научные руководители уделяют значительное внимание отработке навыков начертания разных типов линий.
При оформлении строительных и архитектурных чертежей следует уделить внимание также правильному нанесению размеров.
🤔 ОпределениеРазмер — это числовые значения, которые отображают длины, ширины, высоты и другие измерения объектов и конструкций. Они обычно указываются в единицах измерения, таких как миллиметры, сантиметры, дюймы и т. д. Размеры могут быть показаны на чертежах с использованием различных способов, включая размерные линии, размерные стрелки и числовые значения.
Размеры не только должны соответствовать конструктивным особенностям и технологии производства, но и выполняться в строгом соответствии с установленными правилами. Каждый размер состоит из трех обязательных элементов:
Важно соблюдать следующие требования к нанесению размеров:
Размер должен располагаться на расстоянии не менее 8 мм от контура детали или изделия.
При необходимости проставить несколько параллельных размеров, между размерными линиями следует выдерживать интервал от 8 до 10 мм.
Размерные линии должны выходить за крайние выносные линии на 2-3 мм.
Числовое значение размера размещается над размерной линией, примерно на середине ее длины.
Все элементы размера (выносные и размерные линии, числа) должны выполняться сплошными тонкими линиями.
✏ ЗаметкаСоблюдение этих правил обеспечивает четкость и удобочитаемость размеров на чертежах, что имеет критическое значение для корректного изготовления деталей и конструкций. Особенно важно строгое следование стандартам при оформлении строительной и архитектурной документации, где точность размеров является залогом безопасности и качества возводимых объектов.
Нанесение масштабов на чертеже
Масштабирование — еще один важный аспект правил оформления чертежей, урегулированный в ГОСТ 2.302-2013.
Государственные стандарты определяют широкий спектр параметров масштабирования, включая коэффициенты:
увеличения — 2:1, 2,5:1, 4:1, 5:1 и 10:1;
и уменьшения —1:2, 1:2,5, 1:4, 1:5 и 1:10.
Понимание этих стандартов необходимо для чертежников, чтобы обеспечить достоверность и точность их технических изображений.
При создании чертежа необходимо убедиться, что изображаемый объект или конструкция представлены в истинном масштабе. В случаях, когда натуральное масштабирование невозможно, чертеж должен содержать явное указание масштаба, например, «М2:1», что означает увеличение в два раза. Такой подход обеспечивает ясность и точность передачи информации, а также соответствие стандартам и требованиям технической документации.Сегодня студенты и профессионалы имеют доступ к разнообразным программам для работы с чертежами и проектированием. Некоторые из них, по мнению экспертов, уже устарели и больше подходят для учебных целей. Однако это не значит, что их нельзя использовать для ускорения процесса составления чертежа. Давайте рассмотрим две из них более подробно.
AutoCAD — это программное обеспечение, которым пользуются многие инженеры и архитекторы. Знание этой системы часто необходимо для трудоустройства в инженерную сферу. AutoCAD предоставляет широкие возможности для решения производственных задач. Она позволяет работать как в 2D, так и создавать трехмерные модели, что облегчает восприятие информации на чертежах как авторами, так и другими специалистами.
Кроме того, AutoCAD поддерживает различные форматы чертежей, что позволяет совместно работать над проектами различным специалистам. Например, инженер-проектировщик может разработать проект помещения и передать его инженеру-электрику для разметки электрики. Затем полученные данные могут быть использованы дизайнером для создания трехмерной визуализации.
У программы Autodesk Autocad есть бесплатный пробный период, поэтому вы можете легко использовать ее для написания вашего проекта.
Компас-3D — это еще одна популярная программа для создания чертежей и трехмерного моделирования. Она имеет функциональные возможности, сравнимые с AutoCAD, но обладает также специализированными функциями, которые делают ее популярной среди студентов и профессионалов.
Часто Компас-3D используется студентами как первый трехмерный пакет для выполнения различных заданий по инженерной графике, геометрии, сопромату, технологическим машинам и оборудованию, а также проектированию зданий и сооружений.
Кроме того, данное программное обеспечение широко применяется в производственных организациях. Оно позволяет создавать не только чертежи, но и профессиональную документацию, включая все этапы проектирования, благодаря встроенным инструментам и шаблонам, соответствующим действующим нормативным документам и стандартам.
У Компаса-3D также есть бесплатный пробный период, который длится целый месяц.
Надеемся, что наша статья помогла разобраться в оформлении чертежей по ГОСТу. Если у вас остались вопросы или нужна помощь с составлением чертежа — обращайтесь в Work5!