Рады, что вам понравилась статья 😊
В этой статье мы расскажем, что такое сборочный чертеж и какие требования выдвигаются при его оформлении.
На создание этой статьи у нашей команды ушло 56 человеко-часов. В написании участвовали копирайтер, редактор, преподаватель и контент-менеджер.
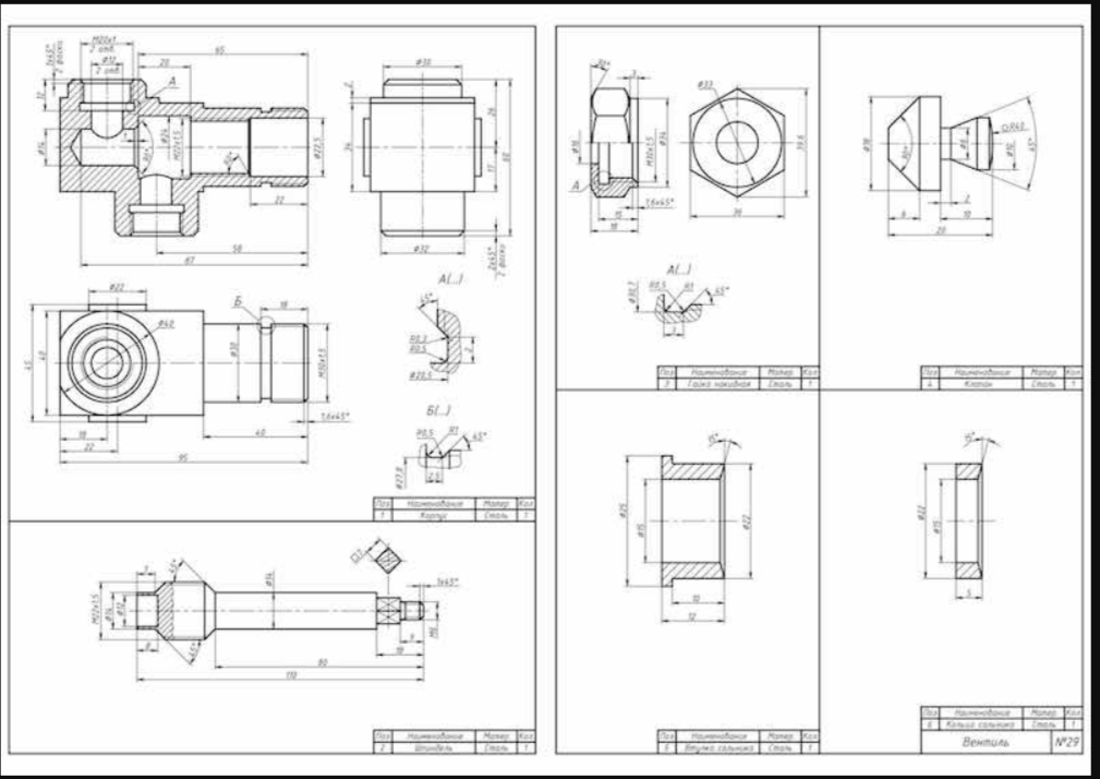
🤔 ОпределениеСборочный чертеж — это технический документ, который отображает изделия или конструкции, состоящие из нескольких деталей (компонентов), показывая, как эти детали соединяются и собираются в единое целое.
На сборочном чертеже указываются размеры, допуски, спецификации, а также часто приводится информация о порядке сборки.
Сборочные чертежи используются в различных отраслях, таких как машиностроение, электроника, строительство и других, где необходимо создать сложные изделия из множества деталей. Они являются важным инструментом для инженеров и конструкторов, так как помогают обеспечить правильное понимание и реализацию конструкции на стадии производства.
Сборочный чертеж может содержать:
Также на сборочных чертежах могут использоваться различные обозначения и условные графические знаки для упрощения восприятия информации.
Фото: взято с сайта http://rk1.bmstu.ru/index.php?id=100
Сборочный чертеж выполняет несколько ключевых задач, включая:
Эти задачи делают сборочные чертежи важным инструментом в процессе проектирования, производства и обслуживания изделий.
Сборочный чертеж — это один из важнейших документов в техническом проектировании, который наглядно демонстрирует, как отдельные компоненты собираются в единое целое.
Рассмотрим основные элементы.
На чертеже необходимо указывать размеры, допустимые отклонения, а также другие параметры и требования, которые должны быть соблюдены или проверены в соответствии со сборочным чертежом. Важными моментами для указания на сборочных чертежах являются следующие категории размеров:
Сборочные чертежи являются важнейшими документами в области технического проектирования. Они служат основой для производства и монтажа изделий, а также обеспечивают связь между различными участниками процесса. Чтобы сборочные чертежи были понятными, точными и не вызывали вопросов, необходимо соблюдать определенные требования к их оформлению.
При оформлении изображений сборочных единиц необходимо соблюдать определенные требования. Основные из них включают:
Фото: взято с сайта http://rk1.bmstu.ru/index.php?id=100
При создании размеров на сборочных чертежах важно учитывать несколько ключевых требований:
На сборочном чертеже все элементы сборочной единицы должны быть пронумерованы в соответствии с номерами позиций, приведенными в спецификации данной единицы. Номера позиций располагаются на полках линий-выносок, ведущих от изображений отдельных составных частей, и, по возможности, группируются в колонках или строках на одной линии. Линии-выноски завершаются на изображении видимой точкой или стрелкой, если деталь закрашена.
Важно, чтобы линии-выноски не пересекались между собой и оставались параллельными линиям штриховки. Также следует избегать их пересечения с размерными линиями и другими элементами изображения. Разрешается применение одной общей линии-выноски с вертикальным расположением номеров позиций для группы деталей, имеющих четкую взаимосвязь.
Шрифт для номеров позиций должен быть на один-два размера больше, чем шрифт, используемый для выражения размерных данных на этом чертеже.

Фото: взято с сайта http://rk1.bmstu.ru/index.php?id=100
Технические требования, изложенные на чертеже, следует группировать по принципу однородности, например, в соответствии с качеством изделия, условиями и методами испытания, правилами транспортировки и хранения, а также особыми условиями эксплуатации. Эти требования располагаются над основной надписью в виде колонки, ширина которой не должна превышать 185 мм.
На листах формата более A4 допускается размещение текста в две и более колонки, при этом ширина каждой колонки также не должна превышать 185 мм. Пункты технических требований должны иметь сквозную нумерацию, и каждый пункт записывается с новой строки. Заголовок «Технические требования» указывается только в случае, если на чертеже также размещены технические характеристики.
Если требуется указать техническую характеристику изделия, ее следует размещать отдельно от технических требований. Технические характеристики нумеруются самостоятельно и размещаются на свободном поле чертежа под заголовком «Техническая характеристика».
Фото: взято с сайта http://rk1.bmstu.ru/index.php?id=100
Упрощение сборочных чертежей является важным этапом в процессе проектирования, позволяющим повысить их читаемость и облегчить восприятие информации. Сборочные чертежи могут быть сложными и перегруженными деталями, планами и размерами, что затрудняет понимание. Упрощение может включать в себя несколько методов и подходов, которые помогут сделать чертежи более понятными и доступными для пользователей.
Одним из основных способов упрощения сборочного чертежа является снижение количества изображений. Вместо множества разрозненных видов, можно использовать общий вид с вырезами или разрезами. Применение условных обозначений для распространенных деталей и соединений может значительно сократить размер чертежа. Например, можно использовать стандартные символы для обозначения крепежных элементов, что избавляет от необходимости изображать каждую деталь в индивидуальном порядке. Удаление избыточной или несущественной информации, которая не влияет на понимание сборки, позволяет сосредоточиться на ключевых аспектах. Это можно сделать путем упрощения текстовых пояснений, сокращения размеров и графиков или даже использования ссылок на более подробные документы. Группировка схожих или связанных деталей в единую категорию может помочь уменьшить загромождение чертежа. При этом важно сохранить ясность и возможность быстро идентифицировать компоненты. Упрощение может также включать в себя использование более понятных и читаемых шрифтов и размеров для размерных обозначений и текстов. Все размеры должны быть указаны четко и однозначно, чтобы избежать путаницы. Сократите количество используемых штриховок и линий, которые не играют важной роли в понимании конструкции. Упрощенная штриховка помогает сосредоточиться на основных элементах чертежа, делая его более понятным. Эффективная организация свободного пространства на чертеже поможет сделать его более структурированным и читабельным. Разделение различных секций (например, технические требования, спецификации) с ясными заголовками и отступами улучшает восприятие.
Спецификация — это конструкторский документ, который оформляется на одном или нескольких листах формата A4 и является обязательным дополнением к чертежам. Она содержит все основные сведения об изделии и включает несколько разделов: Спецификация представляется в виде таблицы с семью столбцами. В учебных курсовых проектах спецификация, как правило, помещается в приложении к пояснительной записке. Соблюдение требований к оформлению сборочных чертежей имеет решающее значение для успешного производства и сборки изделий. Правильное и ясное оформление не только облегчает работу инженеров и мастеров на производстве, но и минимизирует риск ошибок, что, в свою очередь, способствует повышению качества и сроков выпуска продукции. Четкие, доступные и хорошо структурированные сборочные чертежи играют важную роль в процессе разработки, производства и обслуживания продукции, поэтому их оформление должно быть предметом особого внимания. А упрощение сборочных чертежей помогает улучшить их визуальную доступность и понимание, что все более важно в условиях современных производственных процессов. Применяя методы упрощения, дизайнеры и разработчики могут сделать свои чертежи более эффективными и функциональными, что способствует лучшему взаимодействию между участниками проектирования и производства. Это ведет к снижению вероятности ошибок и оптимизации всего процесса разработки и выпуска продукции.Уменьшение количества изображений
Использование условных обозначений
Сокращение ненужной информации
Группировка деталей
Четкие размеры и обозначения
Оптимизация штриховки и линий
Четкая организация пространства
Спецификация сборочного чертежа
Подведем итоги
В этой статье мы расскажем, как обозначаются на чертеже различные виды резьбы.
В соответствии с ГОСТ 2.307-68, резьба обозначается на чертеже определенным образом. Основные элементы, которые нужно учитывать при разметке резьбы, следующие:
✏ ЗаметкаНе забудьте следить за тем, чтобы все обозначения были четкими и читабельными.
При обозначении резьбы на чертеже ключевыми являются геометрические характеристики и диапазон допусков. Условные обозначения имеют следующую интерпретацию:
Диапазон допусков представляет собой комбинацию числа, определяющего степень точности, и буквы, которая соотносится с уровнем точности.
Если длина свинчивания оказывается меньше полной длины резьбы, данное значение также указывается и классифицируется в группе S.
Фото: dgng.pstu
Обозначение трубной резьбы на чертеже включает в себя определенные элементы, которые важно учитывать для правильной интерпретации информации. В зависимости от типа резьбы и ее назначения, используется несколько стандартов:
Пример обозначения трубной резьбы.
.png)
Фото: Стандарт
При необходимости указать трапецеидальную резьбу на чертеже важно следовать стандартам, установленным в ГОСТ 24737-81. Обозначение трапецеидальной резьбы предполагает использование ряда основных геометрических характеристик:
В соответствующих таблицах ГОСТа представлены точные размеры. Например, для резьбы с номинальным диаметром 8 мм и шагом 1,5 или 2 мм наружный диаметр внешней резьбы составляет 8 мм, тогда как наружный диаметр внутренней резьбы равен 8,3 мм. Средний диаметр и для наружной, и для внутренней резьбы равен 7,25 мм.
Данная резьба широко применяется в механизмах, которые преобразуют вращательное движение в прямолинейное.
Фото: dgng.pstu
Обозначение метрической конической резьбы согласно ГОСТ 25229-82 состоит из буквенного обозначения (МК), диаметра резьбы в основной плоскости, шага, а также указания направления резьбы, если оно левое.
Фото: dgng.pstu
Одним из основных характеристик резьбы является шаг, который для дюймовой резьбы рассчитывается как количество витков на одном дюйме. В соответствии с действующими стандартами, дюймовая резьба может быть выполнена с крупным (UNC) или мелким (UNF) шагом. Таблицы размеров для этих типов резьбы имеют разные форматы. Кроме того, в стандартах предусмотрены три класса точности — 1, 2 и 3. При этом буквенное обозначение «А», следующее за номером класса, указывает на наружную резьбу, тогда как буква «В» применяется для обозначения внутренней резьбы.
.png)
Фото: Мировые Охотничьи Технологии
Сбег резьбы обозначает характеристику, отражающую угол наклона витков резьбы и ее форму, что имеет важное значение для механизмов, где применяются резьбовые соединения. На чертеже сбег резьбы может быть представлен следующим образом:
Многозаходная резьба обозначается на чертеже специфическим образом, согласно действующим стандартам. Основные элементы, которые следует учитывать при обозначении многозаходной резьбы, включают:
Фото: dgng.pstu
Резьбовые отверстия могут быть как сквозного, так и глухого типа. В любом варианте крайне важно указать все необходимые параметры на чертеже, включая глубину, размеры, наружный и внутренний диаметры резьбы.
Для отверстий небольшого диаметра допускается упрощенное представление размеров, особенно когда полное обозначение усложняет восприятие чертежа.
На чертежах резьбовое соединение изображается условно. Следует нарисовать профиль резьбы и, если это необходимо, указать такие параметры, как недорез и недовод, а также шаг резьбы. В условно-схематическом изображении применяется штриховка, а на выносных линиях дается полное описание типа соединения элементов. Создание чертежей для высокоточных изделий требует большего времени, поскольку необходимо также указывать допуски размеров и шероховатость поверхности.
Чтобы обозначить резьбу в AutoCAD, следуйте этим шагам:
Следуя этим шагам, вы сможете корректно обозначить резьбу в AutoCAD для своих проектов.
Обозначение резьбы в SolidWorks осуществляется с помощью следующих шагов:
Убедитесь, что все параметры соответствуют требованиям вашего проекта.
Следуя этим шагам, вы сможете успешно создать и обозначить резьбу в SolidWorks для вашего изделия.
Чтобы изображать резьбу на чертеже в Компасе, выполните следующие шаги:
Следуя этим шагам, вы сможете легко создать резьбу на чертеже в Компасе.
Из этой статьи вы узнаете, как начать работу в AutoCAD с нуля: обзор основных функций программы для черчения и моделирования, создание чертежей, работа со слоями и шаблонами, точное построение объектов и подготовка к печати. Статья поможет новичкам освоить базовые инструменты AutoCAD и использовать программу для создания профессиональных чертежей и проектов.
Autodesk AutoCAD — популярная программа для черчения и проектирования, используемая как профессионалами, так и новичками в области инженерии, архитектуры и дизайна. Программа предоставляет мощные инструменты для создания чертежей, моделей и планов. Этот обзор поможет новичкам понять основные возможности AutoCAD и начать работать с программой.
AutoCAD предлагает ряд базовых инструментов, которые делают процесс черчения удобным и точным. Начать можно с создания простых форм, таких как линии, окружности и прямоугольники, которые являются основой для более сложных чертежей. В программе есть удобные инструменты редактирования, такие как копирование, перемещение, вращение и зеркальное отражение объектов, которые позволяют быстро корректировать чертежи.
Интерфейс программы интуитивно понятен: на панели инструментов представлены основные команды, с которыми легко работать даже новичкам. Программа также позволяет быстро переключаться между окнами и панелями, что делает работу с чертежами удобной и понятной.
Слои в AutoCAD — это полезный инструмент для структурирования чертежей. Каждый слой может содержать определенные элементы чертежа, например, стены, мебель или коммуникации, что упрощает управление проектом и делает его более наглядным. Создание и управление слоями позволяет включать или отключать видимость отдельных частей чертежа, редактировать их цвет и стиль линий. Это полезно, если нужно скрыть или показать определенные элементы, выделить важные объекты или распределить объекты по категориям.
AutoCAD позволяет масштабировать чертежи для работы на разном уровне детализации. Инструменты масштабирования помогают приблизить или отдалить объект для точного черчения и удобного обзора. Аннотирование — это добавление надписей, размеров, выносок и других текстовых элементов, которые делают чертежи более информативными. Размеры и выноски позволяют обозначать расстояния и дополнительные сведения. Можно настраивать шрифты, размеры текста и стиль отображения, чтобы обеспечить максимальную читаемость.
Шаблоны и блоки — еще одно преимущество AutoCAD, особенно для начинающих. Программа предоставляет стандартные шаблоны, которые помогают ускорить работу, поскольку они уже включают настроенные параметры, такие как размеры, текстовые стили и слои. Блоки — это элементы, которые можно использовать повторно. Например, двери, окна или мебель можно сохранить как блоки и вставлять в любой проект, что экономит время и делает чертеж более аккуратным и однородным.
Для точного черчения AutoCAD предлагает инструменты привязок. Привязки помогают фиксировать элементы к определенным точкам, например, к углам, центрам или пересечениям. Это делает черчение точным и удобным. Также программа поддерживает инструмент «Орто», который помогает строить линии строго под прямыми углами, и «Полярный отслеживатель», который упрощает построение линий под углами, указанными пользователем.
В AutoCAD можно работать не только с 2D-чертежами, но и создавать 3D-модели. Для начинающих это может показаться сложным, но базовые инструменты трехмерного моделирования, такие как экструзия и вращение, позволяют создавать простые объекты в трехмерном пространстве. Например, из простой 2D-фигуры можно создать объемную форму. Объекты можно объединять, вырезать, изменять их пропорции, что дает гибкость при проектировании.
AutoCAD позволяет экспортировать чертежи в различные форматы, такие как PDF или JPEG, что удобно для представления и обмена проектами. При подготовке чертежа к печати можно настроить лист и выбрать масштаб, чтобы объекты отображались правильно. Слои и масштаб при печати помогают отображать нужные детали и корректно презентовать проект. Возможность экспорта в PDF или другие форматы позволяет делиться чертежами с коллегами или заказчиками, которые могут просматривать проекты без AutoCAD.
AutoCAD — это мощный инструмент для проектирования, и, чтобы эффективно использовать его с самого начала, полезно освоить несколько советов, которые помогут новичкам быстрее понять программу и работать с ней комфортнее.
Используйте горячие клавиши
Знание горячих клавиш в AutoCAD значительно ускоряет работу. Например, такие команды, как COPY (копировать), MOVE (переместить), LINE (линия) или TRIM (подрезать), можно вызвать напрямую с клавиатуры, что быстрее, чем искать их на панели инструментов. Изучите часто используемые горячие клавиши — это поможет вам экономить время на каждом проекте.
Настройте интерфейс под свои потребности
Интерфейс AutoCAD можно настроить так, чтобы команды, которые вы используете чаще всего, были всегда под рукой. Вы можете настраивать панели инструментов, добавлять ярлыки команд и использовать панели быстрого доступа. Персонализация интерфейса делает работу в AutoCAD более удобной и интуитивной.
Работайте со слоями для упрощения чертежа
Слои — отличный инструмент для упорядочивания чертежей. Выделяйте разные элементы чертежа (например, стены, коммуникации, мебель) на отдельных слоях, чтобы быстро включать и отключать их видимость. Это не только делает чертеж аккуратным, но и позволяет легко редактировать определенные элементы, не затрагивая другие.
Используйте привязки для точного черчения
Привязки помогают точно позиционировать объекты в AutoCAD. Например, привязки к середине, конечным точкам и пересечениям позволяют легко находить нужные точки и выстраивать объекты ровно и точно. Привязки особенно полезны для черчения, так как помогают поддерживать точные размеры и пропорции.
Экспериментируйте с масштабами и аннотациями
Масштабирование и аннотирование помогут вам настраивать чертежи под разные уровни детализации. Масштаб позволяет рассматривать чертеж вблизи или на большом расстоянии, а аннотирование помогает добавлять надписи, размеры и выноски. Настроив их однажды, вы сможете легко применять их ко всем чертежам.
Обращайтесь к обучающим материалам и ресурсам
AutoCAD — обширная программа, и изучение ее возможностей требует времени. Используйте обучающие материалы, которые включают видеокурсы, уроки и справочные руководства, доступные на сайте Autodesk и других образовательных платформах. Практика и изучение дополнительных ресурсов помогут вам освоить AutoCAD быстрее и эффективнее.
Эти советы помогут вам начать работу в AutoCAD, улучшить точность чертежей и сделать процесс черчения более эффективным.